Tuesday, June 21, 2011
Monday, June 20, 2011
Plan #4-Before & After
This plan is a hybrid of our two most popular plans...the Eden and the Edenton. And we might as well come clean with it...we're not exactly plan geniuses...sometimes we just keep it simple and go with what works. The Edenton is a plan that works and it works for lots of people. So we developed the Eden as a tribute to the Edenton-a smaller version with all the same features people loved. And guess what? The Eden works too. And don't even get me started on the Ed. It just goes on and on.
So back to this plan...basically, we took the essential elements of the Edenton and added some custom touches...a cool staircase, transom windows throughout the 1st Fl, a gourmet kitchen, optional bump-outs and built-ins...features that combine high-style with high-function.
One area that hasn't been settled...the location of the laundry room. Right now we have two versions-one on the first floor and one on the second floor. Typically we locate the laundry room on the same floor as the Master Suite but there's no rule that says it has to be that way...we'd rather choose the one that our buyers prefer. So let us know: laundry up? or laundry down?
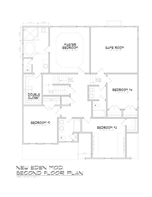
Plan #5-Before & After
Recognize this plan? Look familiar? If you've spent any time on our website you might notice the similarities between this plan and the Brevard plan we've built in Holly Glen and Fairfield. It's fair to call this plan a direct descendent of the Brevard. We loved the Brevard footprint so much we wanted to see if we could tweak it to fit the Wedgewood flavor.
This plan offers a lot of house-we like to think this plan has enough space for whatever you might be in to...hobbies, entertaining, cooking in a gourmet kitchen, movies in the game room...and tons and tons of storage for whatever you used to be in to and got bored with...that's why we're calling this one, 'The Aficionado.'
I can't wait to build this one-it's going to be the very first home we start...on Lot 8...as soon as that pile of dirt disappears of course.
Plan #3-Before & After
We probably should have called this plan Humble Beginnings because quite literally, this plan started out with this drawing. Just me and a legal pad and no real architecture or design qualifications (unless you count my years of experience selling homes that I wished I could change).
My goal with this plan was simple...I wanted to design a home that could easily transition from the inside to the outside. The idea of an outdoor living area is so appealing to me in a Don't-Fence-Me-In kinda way. I wanted a house with a deck and a covered porch and maybe even a wrap around porch...the works as far as outdoor areas are concerned. So this is the drawing I sent off to the architects.
This is what the architects sent back to me...Humble Beginnings was well on it's way to being called You've Come A Long Way Baby.
The first floor got a pretty good reception from our first feedback session. People loved the kitchen, loved the family room and the mix of indoor/outdoor spaces. The placement of the powder room off the kitchen didn't get as warm a reception and the butler's pantry was deemed, 'awkward'.
We did get some great suggestions for improvement:
What if buyers could choose an optional study in lieu of a formal dining room? Lots of buyers think formal dining rooms just don't reflect the best use of space. What if the deck could be an optional sunroom-taking the whole indoor/outdoor theme to the next level? Love those suggestions...we're working on those now.
The second floor didn't fare so well with our panel of critics. Most buyers were looking for a jack-n-jill bath or better placement on the hall baths, especially between BR #2 & BR #3. And the Master Suite was underwhelming at best. No WOW factor. A very close friend of ours made a lovely suggestion to add a coffee porch off the Master Suite (I think that sounds awesome!)
So for our baby that had come a long way, it was clear we still had a LONG LONG WAY to go.
This one is still in the works...and we're hoping to debut the evolved version very soon. We've decided to call this one, 'The Inside-Out'. Until then, stay tuned and let us know what you think!
Plan #6-Before & After, Mostly After.
A few weeks ago as we were developing plans for Sunset Oaks in Holly Springs we realized one of the plans could crossover really well to Wedgewood. This plan wasn't included in our preview session because, at the time, it wasn't even on our radar for Wedgewood. So there's very little 'before' on this plan and a whole lot of 'after'. Which means we'd love to hear your thoughts on this one.
We're calling this one 'The Vintage Remix'. We love that this house has a combination of rooms that remind us of older homes but also includes a few modern twists. The large formal living room in the front...the wrap-around kitchen that leads to the informal hearth room/morning room in the back. The rear staircase really makes us think of the homes we grew up in...what do you think? Love to hear your comments. Tell us what you think...we're listening!
We're calling this one 'The Vintage Remix'. We love that this house has a combination of rooms that remind us of older homes but also includes a few modern twists. The large formal living room in the front...the wrap-around kitchen that leads to the informal hearth room/morning room in the back. The rear staircase really makes us think of the homes we grew up in...what do you think? Love to hear your comments. Tell us what you think...we're listening!
Plan #2-Before & After
Allow me to introduce our long-awaited, frequently-requested and oh-so magnificent 1st Fl Master Plan. You know, if we do say so ourselves.
At our feedback session in April, I got lots of inquiries about this plan. This is the one to watch. Of all the plans, we definitely spent the most time refining this plan, trying to get into the mind of this buyer. Chances are this isn't their first home-they know what they like and what they don't. We guessed some don't want to sacrifice any of the high-end features they may have had in their last home and we guessed some might be coming from a larger home...then we asked ourselves:
Where do they want the most space? [cue large and multiple entertaining areas]
Who else might be living here? [cue the giant in-law suite and optional bedroom upstairs]
Where will they spend the most time? [hopefully in the family rm-kitchen-dining spaces with the 11' ceilings]
What special features can we offer that will totally surprise and delight them? [how 'bout a walk-in-closet the size of a bedroom? an outdoor entertaining area with floor to ceiling windows? a delux spa shower with a rain head?]
We decided to call this one 'The What Now?' since we designed this plan for anyone in transition: maybe the kids are getting older and you're ready for a little separation of space (what now?)...maybe the kids are moving out (what now?)...maybe the kids are moving back in (what now?)...maybe parents are moving in (what now?) or maybe, just maybe, all you really want to do is transition to a huge spa shower. Welcome to The What Now.
Wednesday, June 15, 2011
Plan #1-Before & After
This is the preliminary drawing we introduced for feedback with a group of agents, friends and interested buyers back in April.
The Verdict:
While the plan offered some cool spaces [his & hers study niche, large covered porch] it lacked the type of open living most buyers prefer. The kitchen, in particular, needed to open up to the main living areas. And time and time again we heard [and agreed] that double sinks are an absolute MUST in the hall bath.
The Evolution:
Check out the new and improved version...we are tentatively calling this plan, 'THE Full House' *Uncle Jesse and Olsen Twins not included.
While the plan offered some cool spaces [his & hers study niche, large covered porch] it lacked the type of open living most buyers prefer. The kitchen, in particular, needed to open up to the main living areas. And time and time again we heard [and agreed] that double sinks are an absolute MUST in the hall bath.
The Evolution:
Check out the new and improved version...we are tentatively calling this plan, 'THE Full House' *Uncle Jesse and Olsen Twins not included.
Tuesday, June 14, 2011
Culture Book 2011 - Kendall Ashworth
Teams come in all different sizes. You have soccer where the team could be made up of 20 people. In volleyball you have 15 team member, and in tennis the team could be a mere 6 people. Although winning is a common goal when it comes to sports there is always the underlying goal of simply being better at what you do. At Garman Homes we are a team that simply wants to be better; better builders, better friends, but especially better people to work with.
The Garman Homes team is comprised of a various group of people. We have coaches, players, and spectators who all eager to watch us succeed. Every buyer is welcome to join the team. The process of building a house is a journey, one that as I’ve learned needs all of the team on board. We encourage the buyers go out and look at their lot, contact us with any problems or questions that arise. No one is perfect, but if and when mistakes occur we will fix them.
In the few short weeks that I have been a part of this team I have learned some key points to keep in mind.
1. Mistakes happen, we will fix them.
2. Questions are always welcome.
3. Keep in contact if that means email, text, or call
4. And always remember to put the buyers phone numbers into your iPhone
This team is not only a team, but a family, one that is welcoming to all that come with a positive attitude, no Debby Downers allowed. Just like every other family we enjoy keeping in contact with each other, we enjoy giving a simple “Hi, how’s it going?”, or “Look at you’re new kitchen! It looks AMAZING!!!!” So to all of the new home buyers we want this to be an experience to enjoy rather than one to agonize over. As different events occur we will listen to you, we will adjust our strategy, and especially when the process is complete we will celebrate with you. This is a journey no one can go into alone, with the support of the Garman Homes team, this is a journey to remember.
Kendall Ashworth
Rock Star since May 31, 2011
The Garman Homes team is comprised of a various group of people. We have coaches, players, and spectators who all eager to watch us succeed. Every buyer is welcome to join the team. The process of building a house is a journey, one that as I’ve learned needs all of the team on board. We encourage the buyers go out and look at their lot, contact us with any problems or questions that arise. No one is perfect, but if and when mistakes occur we will fix them.
In the few short weeks that I have been a part of this team I have learned some key points to keep in mind.
1. Mistakes happen, we will fix them.
2. Questions are always welcome.
3. Keep in contact if that means email, text, or call
4. And always remember to put the buyers phone numbers into your iPhone
This team is not only a team, but a family, one that is welcoming to all that come with a positive attitude, no Debby Downers allowed. Just like every other family we enjoy keeping in contact with each other, we enjoy giving a simple “Hi, how’s it going?”, or “Look at you’re new kitchen! It looks AMAZING!!!!” So to all of the new home buyers we want this to be an experience to enjoy rather than one to agonize over. As different events occur we will listen to you, we will adjust our strategy, and especially when the process is complete we will celebrate with you. This is a journey no one can go into alone, with the support of the Garman Homes team, this is a journey to remember.
Kendall Ashworth
Rock Star since May 31, 2011
Culture Book 2011 - Brian Russo
So Jim asked us to write “a few paragraphs” about the culture here at Garman. You see, Iʼm no wordsmith and my creative writing skills pretty much plateaued soon after my 5th grade book report on some Hardy Boys mystery novel. My initial reaction was that conquering “a few paragraphs” about anything will stretch my limits as a writer. But truth be told, after giving the topic a little thought, I have no intentions of keeping this brief. And Iʼm sorry that Iʼm not sorry.
Well culture is a weird thing. A “culture” seems like it should be able to be defined and labeled as a nice, neat little box of practices or ideologies that exist within a group. That would make sense, I mean “culture” is a noun after all.
But the strange thing is, at Garman the culture (G-culture) is so intangible and innate that itʼs super difficult to try to extract out the soul of the company and put into a neat little box of labels and expect someone to grasp it as it truly exists. But, this is what all those book reports prepared me for, so here goes...
Sometimes, when you want to get the clearest picture of something, to get the “Ah ha!” or “Now I get it!” or “That makes sense!” lightbulb, you have to put it next to something else to see the similarities. An old x-ray next to a new one, a blue paint swatch next to a pink one, a pick-up truck next to a Prius. What youʼre really seeing though, are the differences; What youʼre seeing is contrast. And a lot of times, seeing those differences allows you to discover what you didnʼt know existed and place value on what you believe really matters now that you know it does.
Much like my co-Garmaners (Garmanites? Garmanians? Not sure.), I came here from another home builder. On the surface, that company did the same thing that we do. People ask me all the time “How do you like it over there at Garman?”, How is it different from where you were?”. Aside from small talk, what they think theyʼre asking for is a comparison. But sometimes, what theyʼre really asking is “Is there anything
special over there that I should know about?”
The answer is YES!!!!!!! Yes, you are missing out on something special and hereʼs what qualifies me to say so:
After working elsewhere, it would seem easy to compare companies. But the reality is that all that exists is contrast. And thatʼs great because that contrast highlights how special G-culture really is! The stark differences have allowed me to discover a culture that I never knew existed (or even could exist) and put value into it because I see how much it matters.
Our culture is a culture of belief. When you and the people beside you believe in each other and in what youʼre doing, it releases a flood of core values that canʼt exist with out it. Values like: Caring, Excitement, Creativity, Growth, Encouragement, Humility, Thoughtfulness, Passion, Learning, Service and most of all Genuineness.
As individuals, none of us have ever been around a group of people who are more genuine and true to themselves. The neat part is, none of us has ever been more genuine and true to themselves as individuals than we are here as a group.
That is special.
And our culture saturates and pervades (thanks thesaurus) through our relationships with our customers, vendors, sub-contractors, families, and friends. You donʼt have to “buy in” to it. Our culture promotes belief in us because our culture is about believing.
It breeds an atmosphere where you can say what you never thought youʼd say to others at work:
Whew! I did it! I hope that despite my firm grasp on the art of procrastination (this is seriously close to being overdue), coupled with my poor proofreading skills, added with my lack of ability, motivation and experience penning letters, non-fiction, and/or manuscripts of any kind, has not diluted what is truly something special.
If it has, please accept my apologies with an invitation to just simply come around. Allow yourself to get close to the orbit of G-culture and youʼll be sucked in. Believe it.
Brian Russo
Rock Star since April 18, 2011
PS. Editors Note: Brian also sent me this email and an audio file...listen to his G-Rap
Well culture is a weird thing. A “culture” seems like it should be able to be defined and labeled as a nice, neat little box of practices or ideologies that exist within a group. That would make sense, I mean “culture” is a noun after all.
But the strange thing is, at Garman the culture (G-culture) is so intangible and innate that itʼs super difficult to try to extract out the soul of the company and put into a neat little box of labels and expect someone to grasp it as it truly exists. But, this is what all those book reports prepared me for, so here goes...
Sometimes, when you want to get the clearest picture of something, to get the “Ah ha!” or “Now I get it!” or “That makes sense!” lightbulb, you have to put it next to something else to see the similarities. An old x-ray next to a new one, a blue paint swatch next to a pink one, a pick-up truck next to a Prius. What youʼre really seeing though, are the differences; What youʼre seeing is contrast. And a lot of times, seeing those differences allows you to discover what you didnʼt know existed and place value on what you believe really matters now that you know it does.
Much like my co-Garmaners (Garmanites? Garmanians? Not sure.), I came here from another home builder. On the surface, that company did the same thing that we do. People ask me all the time “How do you like it over there at Garman?”, How is it different from where you were?”. Aside from small talk, what they think theyʼre asking for is a comparison. But sometimes, what theyʼre really asking is “Is there anything
special over there that I should know about?”
The answer is YES!!!!!!! Yes, you are missing out on something special and hereʼs what qualifies me to say so:
After working elsewhere, it would seem easy to compare companies. But the reality is that all that exists is contrast. And thatʼs great because that contrast highlights how special G-culture really is! The stark differences have allowed me to discover a culture that I never knew existed (or even could exist) and put value into it because I see how much it matters.
Our culture is a culture of belief. When you and the people beside you believe in each other and in what youʼre doing, it releases a flood of core values that canʼt exist with out it. Values like: Caring, Excitement, Creativity, Growth, Encouragement, Humility, Thoughtfulness, Passion, Learning, Service and most of all Genuineness.
As individuals, none of us have ever been around a group of people who are more genuine and true to themselves. The neat part is, none of us has ever been more genuine and true to themselves as individuals than we are here as a group.
That is special.
And our culture saturates and pervades (thanks thesaurus) through our relationships with our customers, vendors, sub-contractors, families, and friends. You donʼt have to “buy in” to it. Our culture promotes belief in us because our culture is about believing.
It breeds an atmosphere where you can say what you never thought youʼd say to others at work:
- I forgot
- I dropped the ball
- You ROCK!!!
- Iʼm sorry
- Build Like a Girl
- Drive a piece of heavy equipment
- Blog
- Write more than a few paragraphs about anything
- Serve our customers
- Celebrate each other
- Be better
Whew! I did it! I hope that despite my firm grasp on the art of procrastination (this is seriously close to being overdue), coupled with my poor proofreading skills, added with my lack of ability, motivation and experience penning letters, non-fiction, and/or manuscripts of any kind, has not diluted what is truly something special.
If it has, please accept my apologies with an invitation to just simply come around. Allow yourself to get close to the orbit of G-culture and youʼll be sucked in. Believe it.
Brian Russo
Rock Star since April 18, 2011
PS. Editors Note: Brian also sent me this email and an audio file...listen to his G-Rap
JG,I was working on my culture book entry (this is NOT it) and took a shower break and this little nugget rolled off the tongue. Haha, corney but maybe has a place in the Garman Culture Book on tape. LOL
Culture Book 2011 - Laurel Schawel
There are so many things that make the Garman Homes company culture unlike any other builder I've seen. I think every one of us could write a whole book on why Garman Homes is so great. The 4 Garman differences make me proud. Our "no dress code" policy is great! Celebrating each others accomplishments by setting aside a whole day for that person- like a birthday but better because you aren't actually turning a year older- is unheard of! But in my life, my family is my number one. So it was a natural choice for me to write about family.
We are family. I've got all my sisters (and brothers) with me! When asked to write about Garman Homes company culture the first thing that came to my mind was this song. It's really an amazing thing when a group of people who work together treat each other like family. We've taken the team approach to the next level. We respect each other, value each other, encourage each other, trust each other, and back each other up. And the family treatment extends out to our buyers as well. Each new buyer is welcomed into the family and treated the same. We actually care. We get to know our buyers and their families. And sometime, they even get to know ours. We know our buyers by their names and not just by lot number. They are not a number to us.
On a personal level, we are a very family oriented company. You might find little Sam Garman in a pre-party sitting on the table. Or my girls, Ava and Ally, tagging along with me asking how they can help sell a house. We start each pre-party off by going around the table and sharing good news in our business AND personal lives. It's clear that all of our families are our number one and that's allowed here!
There isn't any other place I'd rather work than right here with my family!
Laurel Schawel
Rock Star since January 19, 2011
We are family. I've got all my sisters (and brothers) with me! When asked to write about Garman Homes company culture the first thing that came to my mind was this song. It's really an amazing thing when a group of people who work together treat each other like family. We've taken the team approach to the next level. We respect each other, value each other, encourage each other, trust each other, and back each other up. And the family treatment extends out to our buyers as well. Each new buyer is welcomed into the family and treated the same. We actually care. We get to know our buyers and their families. And sometime, they even get to know ours. We know our buyers by their names and not just by lot number. They are not a number to us.
On a personal level, we are a very family oriented company. You might find little Sam Garman in a pre-party sitting on the table. Or my girls, Ava and Ally, tagging along with me asking how they can help sell a house. We start each pre-party off by going around the table and sharing good news in our business AND personal lives. It's clear that all of our families are our number one and that's allowed here!
There isn't any other place I'd rather work than right here with my family!
Laurel Schawel
Rock Star since January 19, 2011
Culture Book 2011 - Val Morse
So we were asked to write a few paragraphs about what the Garman Homes Culture is to us. So I thought, what better place to start than to look up what culture really means. According to Merriam-Webster's Dictionary one definition of culture is, "expert care and training" and when I read that I thought, that's exactly what Garman Homes is - expert care for it's customers and training for it's employees. There is nothing more important at Garman Homes than making sure the customer is happy and well taken care of. From the moment a customer chooses a Garman Home, they are in for a wonderful experience like nothing they would get from any other builder around. So much care is taken by each Garman employee from the accounting people to the sales staff to the Construction team - you can't go wrong! And the way the employees are taken care of is beyond what you would find at most companies or corporations.
The Garman Culture to me is a relaxing, welcoming environment. It's a place where the most important thing is taking care of people. Making sure each person is known by their name, each family is made to feel like part of the team and each team member is just one of the gang. What a blessing and honor to be part of a great group and a great company like Garman Homes!!!
Rock Star since October, 2010
The Garman Culture to me is a relaxing, welcoming environment. It's a place where the most important thing is taking care of people. Making sure each person is known by their name, each family is made to feel like part of the team and each team member is just one of the gang. What a blessing and honor to be part of a great group and a great company like Garman Homes!!!
Rock Star since October, 2010
Culture Book 2011 - Dan Morse
Garman Homes culture is all about flow, momentum, and change.
Flow is just how we roll....
If someone needs help, we help each other.
If someone is having a bad day, we pick them up.
If someone is being treated poorly, we have their back.
If it takes 80% of our time, we stop doing it because it's not worth it.
If someone does something great, we celebrate!
Momentum is just how we roll....
We make decisions very quickly
Too much analyzing can be paralyzing
We finish what we start.
If the path to success changes, we just follow the new path.
We don't slow down because if we do, we just might stop.
Change is just how we roll....
Change is going from Citrix to Citrix and Google Docs to Citrix and Google Docs and Dropbox.
Change is going from Gerry and I and Mike to Gerry and I and Ryan to Gerry and I and Brian.
Change is going from Alaina and Kathie and Randy to Alaina and Jim to Alaina and Laurel to Alaina and Laurel and Kendall
What a great first year! As you can see, we are not afraid of change, because sometimes that is what we need to do to be successful.
Dan Morse
Rock Star since April 20, 2010
Flow is just how we roll....
If someone needs help, we help each other.
If someone is having a bad day, we pick them up.
If someone is being treated poorly, we have their back.
If it takes 80% of our time, we stop doing it because it's not worth it.
If someone does something great, we celebrate!
Momentum is just how we roll....
We make decisions very quickly
Too much analyzing can be paralyzing
We finish what we start.
If the path to success changes, we just follow the new path.
We don't slow down because if we do, we just might stop.
Change is just how we roll....
Change is going from Citrix to Citrix and Google Docs to Citrix and Google Docs and Dropbox.
Change is going from Gerry and I and Mike to Gerry and I and Ryan to Gerry and I and Brian.
Change is going from Alaina and Kathie and Randy to Alaina and Jim to Alaina and Laurel to Alaina and Laurel and Kendall
What a great first year! As you can see, we are not afraid of change, because sometimes that is what we need to do to be successful.
Dan Morse
Rock Star since April 20, 2010
Culture Book 2011 - Gerry Felton
Culture, as defined by Webster’s dictionary reads: The set of values, conventions, or social practices associated with a particular field, activity or societal characteristic. Now I don’t know about you guys, but when I think about the culture at my job that smartly worded sentence is not the first thing that comes to mind. You see, to accurately describe the culture at Garman Homes there are two words, and two words only that can do her justice; and those two words are, “Garman Homes.” Now I understand that doesn’t make sense to most of you, especially since we only have about 6-7 employees! What I am suggesting is that the culture at Garman Homes is so unique that it can’t be boxed in by another’s.
There are a multitude of things that make up the culture at Garman homes, but today I want to focus on just a few of them. Do you guys remember back in, “The Good Ole Days” when people worked hard, loved what they did, built a superior lasting product, and most importantly loved its people and customers? Well that’s us, we have built our business around making people’s dreams come true and building a quality house at the same time. I can’t tell you how many people have come to us with ideas of what they wanted in their perfect home and time and time again we made it happen for them. So, I guess I will call my first culture point the, “we slayed it again factor!”
We all know of “that guy” or “that product” or “that company” that is at best second rate in terms hontegriditis (yes I made up this word). What is this you might ask, this is my attempt to sum up and combine the words honesty and integrity. This is my second culture point, here at Garman I can confidently and proudly say that WE DO THE RIGHT THING! In many aspects this has been key to our success, as a builder because when people see this (and believe me, they see it) it leaves a lasting impression that they just can’t help but tell others about. As a field guy this is one of the most challenging parts of my job. In my experience anytime you have to be upfront and honest about something is usually because along the way something got messed up! Let me be the first to tell you that “after-the-fact” fixes are hard, time consuming, and down-right irritating. But, at the end of the day if we can’t be bigger than our mistakes (and yes we make them) where does that leave us???
Bringing up the rear is a little something I like to call attitude. We have all heard the saying, “attitude reflects leadership.” Well that’s certainly true and we are leading the way in our unconventional style of home building. Having a good attitude doesn’t mean we don’t get mad or angry, but it does mean that we commit to being positive while we work through things with each other and customers. A key component of this is humility. You won’t find any ego here (except from me but I am working on it) and we give each other plenty of wiggle room. Put all that together and you have a great place to excel because people aren’t afraid to make mistakes.
I hope you have caught a glimpse that while we aren’t a perfect company, every day we strive to do the things the Garman Way. If you can’t find a good fit for what you’re looking from anyone come check us out, I think you’ll like us!
Gerry Felton
Rock Star since March, 2010
There are a multitude of things that make up the culture at Garman homes, but today I want to focus on just a few of them. Do you guys remember back in, “The Good Ole Days” when people worked hard, loved what they did, built a superior lasting product, and most importantly loved its people and customers? Well that’s us, we have built our business around making people’s dreams come true and building a quality house at the same time. I can’t tell you how many people have come to us with ideas of what they wanted in their perfect home and time and time again we made it happen for them. So, I guess I will call my first culture point the, “we slayed it again factor!”
We all know of “that guy” or “that product” or “that company” that is at best second rate in terms hontegriditis (yes I made up this word). What is this you might ask, this is my attempt to sum up and combine the words honesty and integrity. This is my second culture point, here at Garman I can confidently and proudly say that WE DO THE RIGHT THING! In many aspects this has been key to our success, as a builder because when people see this (and believe me, they see it) it leaves a lasting impression that they just can’t help but tell others about. As a field guy this is one of the most challenging parts of my job. In my experience anytime you have to be upfront and honest about something is usually because along the way something got messed up! Let me be the first to tell you that “after-the-fact” fixes are hard, time consuming, and down-right irritating. But, at the end of the day if we can’t be bigger than our mistakes (and yes we make them) where does that leave us???
Bringing up the rear is a little something I like to call attitude. We have all heard the saying, “attitude reflects leadership.” Well that’s certainly true and we are leading the way in our unconventional style of home building. Having a good attitude doesn’t mean we don’t get mad or angry, but it does mean that we commit to being positive while we work through things with each other and customers. A key component of this is humility. You won’t find any ego here (except from me but I am working on it) and we give each other plenty of wiggle room. Put all that together and you have a great place to excel because people aren’t afraid to make mistakes.
I hope you have caught a glimpse that while we aren’t a perfect company, every day we strive to do the things the Garman Way. If you can’t find a good fit for what you’re looking from anyone come check us out, I think you’ll like us!
Gerry Felton
Rock Star since March, 2010
Culture Book 2011 - Alaina Money
When I think of the culture at Garman Homes, I smile. I often find myself saying, "at Garman Homes we're 'free to be you and me' " but I should edit that to include, "as long as 'you and me' are positive, passionate and relentless in the pursuit of everyones best work." Because if 'you and me' were negative, gossipy and only out for ourselves, we wouldn't last very long at Garman Homes. Trust me.
We're free to be you and me in the sense that we don't have to have the same opinions or even agree with each other but we're very respectful of each other. Not in a formal way, just in a friendly way that makes it easy for everyone to be their true self.
We are a culture of celebration. We celebrate each other's strengths and we even celebrate some of our failures. When we fail we learn and we evolve and we get better and getting better is always a cause for celebration. Always.
We're protective of each other from the outside and from the inside we're constantly trying to see how far we can push each other. I think of us like that game we used to play as kids called, 'crack the whip'...where we would all ice skate or roller skate in a line holding hands and at a certain point the person in the lead would stop and swing the others forward, the force of which gets more and more intense with each person, until the last person is literally flung so far forward they leave the group at warp speed with the others cheering them on to see how far they will go...or to go and pick them up if they happen to crash right into a wall. Either way, it's cool because you know you've got support and you know you will be protected. That's the only way we'll find out just how far each of us can fly forward-by the rest of us collectively flinging them into oblivion. Not really. But kinda. You get the gist.
Alaina Money
Rock Star since March 31, 2008
We're free to be you and me in the sense that we don't have to have the same opinions or even agree with each other but we're very respectful of each other. Not in a formal way, just in a friendly way that makes it easy for everyone to be their true self.
We are a culture of celebration. We celebrate each other's strengths and we even celebrate some of our failures. When we fail we learn and we evolve and we get better and getting better is always a cause for celebration. Always.
We're protective of each other from the outside and from the inside we're constantly trying to see how far we can push each other. I think of us like that game we used to play as kids called, 'crack the whip'...where we would all ice skate or roller skate in a line holding hands and at a certain point the person in the lead would stop and swing the others forward, the force of which gets more and more intense with each person, until the last person is literally flung so far forward they leave the group at warp speed with the others cheering them on to see how far they will go...or to go and pick them up if they happen to crash right into a wall. Either way, it's cool because you know you've got support and you know you will be protected. That's the only way we'll find out just how far each of us can fly forward-by the rest of us collectively flinging them into oblivion. Not really. But kinda. You get the gist.
Alaina Money
Rock Star since March 31, 2008
Culture Book 2011 - Lydie Epoko
I have worked for Garman Homes for over 4 years now handling payables, May 2011 was my four years anniversary and I can’t wait to be able to say that I have been with the company for 10 years, why? Because I love working for the owner Jim Garman, his name is simply Jim for me.
For me Garman Homes represents family, personal growth, opportunities, flexibility, telecommuting, fun working environment, and the future. The company has a sound and well thought out strategic plan which keeps everyone focused clearly on where we are going and how we are going to get there. I trust and respect Jim.
Garman Homes represents family for me. I couldn’t have picked a better company to work for part-time when I decided to stay home and take care of my little ones; moving away for that corporate stress and high degree of demands and expectations which usually end up being a burden for your family with late working hours. I needed a good balance between family and work and I found that at Garman Homes. If I cannot find a babysitter, I know that I can take my kids to a scheduled meeting. Not only that; my personal values are similar to the values of Garman Homes. We seem to believe in the same things. Even after all these years with high and lows, the beliefs have not changed. Where else will you get that?
Garman Homes represent personal growth and opportunities for me. With this company, I have taken more responsibilities than I had with a large corporation. I learned new skills and new computer systems and I cannot wait to see what Jim has in for me in the future. The company sets challenging goals which motivates me to constantly improve my performance and I love that. New suggestions or process improvements are always welcome. I am always being praised about my work large or small. When you look at each employee you can tell that they enjoy their work as well, and they are so good at it too. You always hear praises here and there non-stop.
Garman Homes represents flexibility and telecommuting for me. I can wake up at 2 or 4am in the morning and start working. I can set up a movie at home for the kids when they are out of school and sit on my computer to respond to urgent requests or account inquiries. I am not required to sit on my computer 9-5. I am allowed to set up my own schedule and all I am required to do is to just get the work done.
Garman Homes is a fun working environment and is always embracing the future. Because I telecommute, I do not get to see everyone often, so my best day is when we all get together for our First Friday Meeting where we all get to say something nice about our personal life and what we are up to at work. We also get to hear great stories about our customers and how we are changing lives out there. One of its main requirements is for all of us to have a great and positive attitude; it is even required from our customers and outside partners. I know we have all heard about a great and positive attitude from many jobs but just right now if you are reading this, simply take a look around your office and tell me if you see great and positive attitude. Here this is real, if not you are out! It is also quite incredible that with the job market and construction industry prospects so loom, that we are still standing, moving forward, outperforming our goals and competitions but having fun doing it. Have you ever seen your boss skate around the office? We have and it is on Facebook too!
Garman Homes also offers a great employee incentives program to its people such as vacation, bonus package, and the best of all, an employee Day. Where else can the boss take you to lunch? On top of that some employees get surprises such as an Ipad or a laptop if they killed it that month or if Jim is looking to move to the next level of efficiency and customer relation, and the good thing is that they get to keep them. Still want me to continue, we can be here for a while you know!
It is always a pleasure for me to work here. I do not have any complain whatsoever and enjoy my work a lot. Everyone is always friendly, with a smile on the face and you are valued as a person. If you are looking for a new opportunity and a great place to work, you are more than welcome to apply…But remember with a company like this, demands are high, so I suggest that you get ready to bring you’re A game! If you can’t be a Rockstar or a good Backup Singer at least, just like American Idol, you may not make it…
Lydie Epoko
Rock Star since May 14, 2007
For me Garman Homes represents family, personal growth, opportunities, flexibility, telecommuting, fun working environment, and the future. The company has a sound and well thought out strategic plan which keeps everyone focused clearly on where we are going and how we are going to get there. I trust and respect Jim.
Garman Homes represents family for me. I couldn’t have picked a better company to work for part-time when I decided to stay home and take care of my little ones; moving away for that corporate stress and high degree of demands and expectations which usually end up being a burden for your family with late working hours. I needed a good balance between family and work and I found that at Garman Homes. If I cannot find a babysitter, I know that I can take my kids to a scheduled meeting. Not only that; my personal values are similar to the values of Garman Homes. We seem to believe in the same things. Even after all these years with high and lows, the beliefs have not changed. Where else will you get that?
Garman Homes represent personal growth and opportunities for me. With this company, I have taken more responsibilities than I had with a large corporation. I learned new skills and new computer systems and I cannot wait to see what Jim has in for me in the future. The company sets challenging goals which motivates me to constantly improve my performance and I love that. New suggestions or process improvements are always welcome. I am always being praised about my work large or small. When you look at each employee you can tell that they enjoy their work as well, and they are so good at it too. You always hear praises here and there non-stop.
Garman Homes represents flexibility and telecommuting for me. I can wake up at 2 or 4am in the morning and start working. I can set up a movie at home for the kids when they are out of school and sit on my computer to respond to urgent requests or account inquiries. I am not required to sit on my computer 9-5. I am allowed to set up my own schedule and all I am required to do is to just get the work done.
Garman Homes is a fun working environment and is always embracing the future. Because I telecommute, I do not get to see everyone often, so my best day is when we all get together for our First Friday Meeting where we all get to say something nice about our personal life and what we are up to at work. We also get to hear great stories about our customers and how we are changing lives out there. One of its main requirements is for all of us to have a great and positive attitude; it is even required from our customers and outside partners. I know we have all heard about a great and positive attitude from many jobs but just right now if you are reading this, simply take a look around your office and tell me if you see great and positive attitude. Here this is real, if not you are out! It is also quite incredible that with the job market and construction industry prospects so loom, that we are still standing, moving forward, outperforming our goals and competitions but having fun doing it. Have you ever seen your boss skate around the office? We have and it is on Facebook too!
Garman Homes also offers a great employee incentives program to its people such as vacation, bonus package, and the best of all, an employee Day. Where else can the boss take you to lunch? On top of that some employees get surprises such as an Ipad or a laptop if they killed it that month or if Jim is looking to move to the next level of efficiency and customer relation, and the good thing is that they get to keep them. Still want me to continue, we can be here for a while you know!
It is always a pleasure for me to work here. I do not have any complain whatsoever and enjoy my work a lot. Everyone is always friendly, with a smile on the face and you are valued as a person. If you are looking for a new opportunity and a great place to work, you are more than welcome to apply…But remember with a company like this, demands are high, so I suggest that you get ready to bring you’re A game! If you can’t be a Rockstar or a good Backup Singer at least, just like American Idol, you may not make it…
Lydie Epoko
Rock Star since May 14, 2007
River Rock Swim & Racket Club
Wow! This place is gorgeous. This facility is NOT included in your HOA dues for Wedgewood, but like Silverton residents, you may join this club for a fee. I like this because you only need to pay for it if you want to. (PS. I took this awesome picture...can you believe it? It's so nice!)
Here are a few more pics.
OK, so the tennis courts are not so great, but the pool is really nice!
Wanna know what's nearby?
Wedgewood is close to so much. We decided to drive around and capture a few hotspots we thought might be of interest...
Park West Village is just minutes away at the intersection of Cary Parkway and Chapel Hill Road. Ok, so it doesn't look like much right now but trust us, it's going to be great. Target Coming Soon and lots more. Check it out.
Primrose School of Cary is within walking distance of the neighborhood.
Closest coffee spot (if you don't count your kitchen).
Get your daily caffeine at the intersection of Evans Rd and Maynard Rd.
In the same shopping center you may be inspired by your caffeine buzz to tackle a few home projects...well, you're in luck, look what's right next door!
Jim talks thru plans for the entrance monument
Entrance monuments, street widening and fencing, Oh My!
River Rock Swim & Racket Club - Video
Just 1/4 mile down Evans Road...You may choose to join this club for a fee. Many Silverton people do this, it's a great pool! Tennis courts...well...not so great.
Getting Started...
Nice Hat, Dan!
Our Director of Construction, Dan Morse, showing us how to handle the water main! Wedgewood is rolling...pipe going in the ground as we speak!
Wedgewood Sign - All 32 Square Feet!
The Town of Cary has strict sign rules...we learned our sign could only be 42" tall...but we also discovered it could be 10' wide...so we used all 10'! Thanks Randy for the beautiful sign.
Culture Book 2011 - Elizabeth Kenly
BE WHATEVER - BE OK
Unfortunately this industry, as well as many others like it in the South, are surprisingly behind the curve in terms of valuing diversity in the workplace. Therefore, Garman Homes values place this company in a league of it’s own.
Now allow me to clarify...Garman Homes does not set out to hire an individual representing each religion, political group, ethnicity or sexual orientation because it is politically correct.
They simply embody “Be Whatever - Be Ok” by not placing emphasis and focus on “what” you are in the first place. The emphasis is, and has always been on the following things: your attitude, your ability to change and grow, your ability to admit fault and make the appropriate changes, your energy and your individual skills and talents.
Therefore...go ahead and be a vegan, Muslim-Jew-for Jesus who wears your little sister’s fushia tap shoes to work every day. Will every one agree with your eating habits or fashion sense? Probably not. However, you’ll be fine as long as you are able to do the following things:
-Don’t just show up - BE PRESENT
-Don’t just accomplish tasks - EXCEED EXPECTATIONS
-Don’t just have a positive attitude - SURPRISE PEOPLE WITH IT
-Don’t make little mistakes - MAKE BIG, FAT ONES, ADMIT THEM AND LEARN FROM THEM
-Don’t just get excited about the big things - BE PASSIONATE ABOUT EVERYTHING YOU DO...MAKE BATHROOM BREAKS SPECIAL (sing if you like)
-Don’t just work within the company - OWN YOUR LITTLE CORNER OF IT
-Don’t just be flexible - GET COMFORTABLE WITH CONSTANT CHANGE
And don’t stay one minute past the day you are unable to meet or completely disagree with the values - THERE IS A LID FOR EVERY POT, LIFE IS SHORT...FIND A GOOD FIT FOR YOURSELF
I find that when everyone in the company works in this manner, people are motivated to “be better” every day. What could be better than working with a bunch of surprisingly upbeat, diverse, flexible, passionate, growing people who all seem to care about one another?
Elizabeth Kenly
Rock Star since January 7, 2008
Unfortunately this industry, as well as many others like it in the South, are surprisingly behind the curve in terms of valuing diversity in the workplace. Therefore, Garman Homes values place this company in a league of it’s own.
Now allow me to clarify...Garman Homes does not set out to hire an individual representing each religion, political group, ethnicity or sexual orientation because it is politically correct.
They simply embody “Be Whatever - Be Ok” by not placing emphasis and focus on “what” you are in the first place. The emphasis is, and has always been on the following things: your attitude, your ability to change and grow, your ability to admit fault and make the appropriate changes, your energy and your individual skills and talents.
Therefore...go ahead and be a vegan, Muslim-Jew-for Jesus who wears your little sister’s fushia tap shoes to work every day. Will every one agree with your eating habits or fashion sense? Probably not. However, you’ll be fine as long as you are able to do the following things:
-Don’t just show up - BE PRESENT
-Don’t just accomplish tasks - EXCEED EXPECTATIONS
-Don’t just have a positive attitude - SURPRISE PEOPLE WITH IT
-Don’t make little mistakes - MAKE BIG, FAT ONES, ADMIT THEM AND LEARN FROM THEM
-Don’t just get excited about the big things - BE PASSIONATE ABOUT EVERYTHING YOU DO...MAKE BATHROOM BREAKS SPECIAL (sing if you like)
-Don’t just work within the company - OWN YOUR LITTLE CORNER OF IT
-Don’t just be flexible - GET COMFORTABLE WITH CONSTANT CHANGE
And don’t stay one minute past the day you are unable to meet or completely disagree with the values - THERE IS A LID FOR EVERY POT, LIFE IS SHORT...FIND A GOOD FIT FOR YOURSELF
I find that when everyone in the company works in this manner, people are motivated to “be better” every day. What could be better than working with a bunch of surprisingly upbeat, diverse, flexible, passionate, growing people who all seem to care about one another?
Elizabeth Kenly
Rock Star since January 7, 2008
Subscribe to:
Comments (Atom)





















